プライム日本橋 東京都中央区日本橋浜町三丁目35-6|4億8,500万円の1棟売りビル|バイリンク株式会社

1棟売りビル

プライム日本橋
お気に入り
価格 4億8,500万円
利回り 4.21% 満室時想定
年収/月収
2,044.7万円 / 170.4万円
所在地 東京都中央区日本橋浜町三丁目35-6
この地域周辺の物件を見る
築年月 1992年10月築(築33年)
交通
東京メトロ半蔵門線 水天宮前 徒歩9分
都営新宿線 浜町 徒歩6分
東京メトロ日比谷線 人形町 徒歩12分
建ぺい率 80 % 容積率 500 %
ここがおすすめ

中央区!利回り約4.21%!検査済証有り!満室稼働中!2019年10月大規模修繕工事済み!


  •  -
  •  -
  •  -
  •  -
  •  -
  •  -
  •  -
お問い合わせ、資料請求、見学のお申し込みはこちらから

電話をかける(携帯・PHS可)
03-5521-8707
「ホームページを見た」とお伝え下さい。

お問い合わせ番号をお伝えください
RHS-252597

お問合せ

セールスポイント

特徴
  • エレベーター
  • 角地
  • 満室
セールスコメント 都営新宿線「浜町」駅 徒歩約6分、東京メトロ半蔵門線「水天宮前」駅 徒步;約9分、東京メトロ日比谷線「人形町」駅 徒步;約12分、複数路線利用可能な一棟ビルのご紹介です。

本物件は中央区日本橋浜町エリアに位置し落ち着いた住宅地とオフィス・商業の混在するエリア特性を持っており日常生活用品の買い回り、飲食・カフェ利用、銀行・郵便・医療機関などの施設も近隣に揃っています。
又、浜町エリアの主要動線に面した角地に位置し駅近・商業地域指定・都心アクセスという三重の立地優位性を兼ね備えており歩行者・車両双方からの認知を得やすいポジションといえるでしょう。
この立地条件は幅広いビジネス展開において安定したテナント需要が見込まれると推測されます。

この機会にぜひご検討くださいませ。

・物件価格:485,000,000円(税込)
・月収:1,703,880円
・年収:20,446,560円
・表面利回り:約4.21%

本物件にご興味がございましたらお気軽に担当:石岡 TEL 080-3484-3637までお問い合わせください。

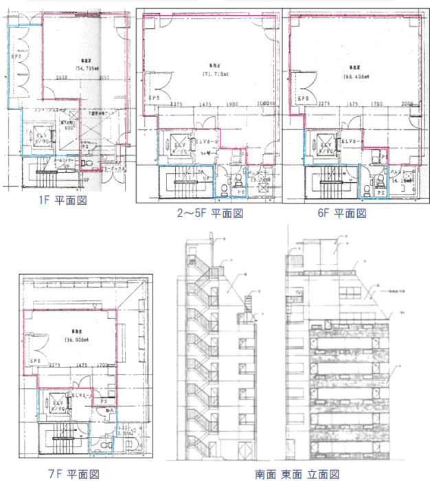
物件概要

階数 地上7階建 用途地域 商業地域
構造 SRC造
間取り 1R×7戸 -
土地面積 116.88m² (公簿) (35.36坪) 建物面積 565.89u
テラス面積 - 専用庭面積 -
現況 現在満室 引渡し 相談
土地権利 -
駐車場 なし 駐輪場 -
法令上の制限 - 都市計画 市街化区域
地目 宅地 地勢 平坦
接道状況 接道: 北西 公道 道路幅: 11m
接道: 北東 公道 道路幅: 6m
総戸数 7戸
私道負担面積 - セットバック -
建築確認番号
取引態様 媒介
情報更新日 2025年12月10日 次回更新日 2025年12月24日
情報更新日:2025年12月10日 次回更新予定日:2025年12月24日
※各種情報と差異がある場合は現況優先となります
お問い合わせ、資料請求、見学のお申し込みはこちらから

電話をかける(携帯・PHS可)
03-5521-8707
「ホームページを見た」とお伝え下さい。

お問い合わせ番号をお伝えください
RHS-252597

お問合せ

電話でお問い合わせ
バイリンク株式会社 東京支社

電話をかける

03-5521-8707

※「ホームページを見た」とお伝えください。
お問い合わせ番号をお伝えください
RHS-252597

お問い合わせ

お問い合わせ内容
お問合せ内容必須
【備考欄】
詳細な見学ご希望時間、ご質問、ご希望条件などがございましたらお聞かせ下さい。
(2000文字以内)
お客様情報
お名前必須
連絡先必須 メールアドレス

※ご記入いただいたメールアドレス宛てに、お問合せ内容の確認メールをお送りいたします。
※Yahoo!メールなどのフリーメールをご利用の場合、迷惑メールフォルダに入る場合があります。
 迷惑メールのフォルダ・設定等をご確認下さい。
電話番号
住所
FAX(任意)
ご年収必須
自己資金(諸経費含む)必須 万円
※ご入力いただいたお客さまの個人情報は、「個人情報のお取り扱いについて」に基づき適正に取り扱います。
必ずお読みになり、同意の上お問い合わせください。

お気軽にお問い合わせください

03-5521-8707
物件番号 RHS-252597
※「ホームページを見た」
とお伝え下さい。

お役立ち機能

このページを印刷する
会員登録
不動産投資 ア・ラ・カルト
売買実績
大阪駅前ビル
バイリンク株式会社
- 大阪本社
大阪市北区梅田1丁目2番2号 大阪駅前第2ビル12階
06-6347-8681
- 神戸支社
兵庫県神戸市中央区三宮町2丁目11-1センタープラザ西館7階
078-321-0910
- 京都支社
京都府京都市下京区綾小路通新町東入善長寺町143番地マスギビル204号
075-741-8135
- 東京支社
東京都港区新橋2丁目9番16号 新橋赤レンガ通りビル4階
03-5521-8707

PAGE TOP

お問合せ

お問合せ
大阪・東京の収益物件、不動産投資はバイリンク株式会社
Copyright(C) xLINK. All Rights reserved.