松利ビル 大阪府大阪市中央区東心斎橋2-5-25|3億5,200万円の1棟売りビル|バイリンク株式会社

1棟売りビル

松利ビル
お気に入り
価格 3億5,200万円
利回り 6.50% 満室時想定
年収/月収
2,290.2万円 / 190.9万円
所在地 大阪府大阪市中央区東心斎橋2-5-25
この地域周辺の物件を見る
築年月 1969年9月築(築56年)
交通
Osaka Metro御堂筋線 心斎橋 徒歩6分
Osaka Metro長堀鶴見緑地線 長堀橋 徒歩5分
建ぺい率 80 % 容積率 500 %
ここがおすすめ

-


  •  -
  •  -
  •  -
  •  -
お問い合わせ、資料請求、見学のお申し込みはこちらから

電話をかける(携帯・PHS可)
06-6347-8681
「ホームページを見た」とお伝え下さい。

お問い合わせ番号をお伝えください
RHS-1313

お問合せ

セールスポイント

特徴
  • 都市ガス
  • 満室
セールスコメント 本件立地(笠屋町筋通り)は土地約22.58坪、建物間口約6m、ミナミ繁華街中心地を押さえており、日本・海外の投資家も含め「ミナミ」に収益性の良い不動産を所有する事はある意味一種のブランド化傾向にもあります。本物件の売りは「テナント需要」+「立地」の二本立てで、本エリアでは希少な高利回り6.5%です。
※当時、2階・3階・4階・看板広告については募集開始早々に満額申込が入り契約締結に至りました。
テナント需要の高さは大阪市内でも指折りの需要ゾーンで、現在満室稼働中です!
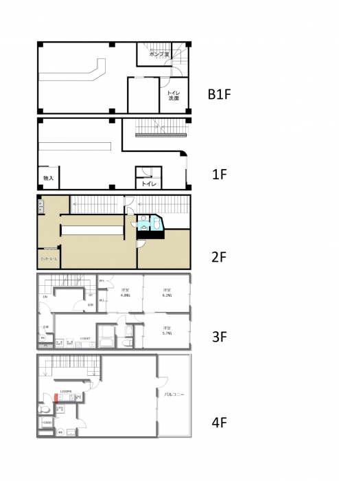
入居テナント:B1階(ステーキ屋)・1階(和食料理)・2階(BAR)・3階(民泊)・4階(民泊)・外壁(看板広告)

昭和44年築の鉄骨・鉄筋コンクリート造(旧耐震)という部分に古さを感じるかも知れませんが、
本エリアの高稼働収益不動産では至極普通の事で、それよりも「立地」に対して価値を得る投資家様がほとんどです。全体的に本エリアは20坪以下の狭小地+建物間口が狭い物件が比較的多い中、20坪以上+建物間口約6m確保出来ている点もポイントでしょうか。
将来的に建替え等により資産価値を上げる事も想定出来ますが、正直空室情報を地元不動産の耳に入ればリーシングの猛アプローチを受けると思いますので空けておく暇があるかどうかの話になると思います。それであれば継続的なインカムゲインを最大限まで得る方向性をおススメします!

■月額賃料1,908,500円(年間22,902,000円)
表面利回り6.5%

満室稼働中のため室内確認は出来ませんが、現地視察にて案内可能!
詳細資料請求等も含め、ご希望の際はご連絡下さい。

担当:上山 080-4300-1620

物件概要

階数 地上4階 地下1階建 用途地域 商業地域
構造 S造
間取り -
土地面積 74.67m² (公簿) (22.59坪) 建物面積 -
テラス面積 - 専用庭面積 -
現況 現在満室 引渡し 相談
土地権利 -
駐車場 - 駐輪場 -
法令上の制限 - 都市計画 市街化区域
地目 宅地 地勢
接道状況 接道: 西 6.15m 公道 道路幅: 6m 総戸数 5戸
私道負担面積 - セットバック -
建築確認番号
取引態様 一般媒介
情報更新日 2025年11月07日 次回更新日 2025年11月21日
情報更新日:2025年11月07日 次回更新予定日:2025年11月21日
※各種情報と差異がある場合は現況優先となります
お問い合わせ、資料請求、見学のお申し込みはこちらから

電話をかける(携帯・PHS可)
06-6347-8681
「ホームページを見た」とお伝え下さい。

お問い合わせ番号をお伝えください
RHS-1313

お問合せ

電話でお問い合わせ
バイリンク株式会社

電話をかける

06-6347-8681

※「ホームページを見た」とお伝えください。
お問い合わせ番号をお伝えください
RHS-1313

お問い合わせ

お問い合わせ内容
お問合せ内容必須
【備考欄】
詳細な見学ご希望時間、ご質問、ご希望条件などがございましたらお聞かせ下さい。
(2000文字以内)
お客様情報
お名前必須
連絡先必須 メールアドレス

※ご記入いただいたメールアドレス宛てに、お問合せ内容の確認メールをお送りいたします。
※Yahoo!メールなどのフリーメールをご利用の場合、迷惑メールフォルダに入る場合があります。
 迷惑メールのフォルダ・設定等をご確認下さい。
電話番号
住所
FAX(任意)
ご年収必須
自己資金(諸経費含む)必須 万円
※ご入力いただいたお客さまの個人情報は、「個人情報のお取り扱いについて」に基づき適正に取り扱います。
必ずお読みになり、同意の上お問い合わせください。

お気軽にお問い合わせください

06-6347-8681
物件番号 RHS-1313
※「ホームページを見た」
とお伝え下さい。

お役立ち機能

このページを印刷する
会員登録
不動産投資 ア・ラ・カルト
売買実績
大阪駅前ビル
バイリンク株式会社
- 大阪本社
大阪市北区梅田1丁目2番2号 大阪駅前第2ビル12階
06-6347-8681
- 神戸支社
兵庫県神戸市中央区三宮町2丁目11-1センタープラザ西館7階
078-321-0910
- 京都支社
京都府京都市下京区綾小路通新町東入善長寺町143番地マスギビル204号
075-741-8135
- 東京支社
東京都港区新橋2丁目9番16号 新橋赤レンガ通りビル4階
03-5521-8707

PAGE TOP

お問合せ

お問合せ
大阪・東京の収益物件、不動産投資はバイリンク株式会社
Copyright(C) xLINK. All Rights reserved.