| 価格 | 3億4,800万円 | ||||
|---|---|---|---|---|---|
| 利回り | - | 満室時想定 年収/月収 |
- / - | ||
| 所在地 | 東京都新宿区北新宿4-28-12 この地域周辺の物件を見る |
築年月 | 1973年6月築(築52年) | ||
| 交通 |
JR総武線 東中野 徒歩7分
東京メトロ東西線 落合 徒歩10分 JR山手線 新大久保 徒歩18分 |
建ぺい率 | 80 % | 容積率 | 400 % |
電話をかける(携帯・PHS可)
03-5521-8707
「ホームページを見た」とお伝え下さい。
お問い合わせ番号をお伝えください
RHS-M04081218
| 特徴 |
|
|---|---|
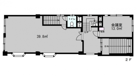
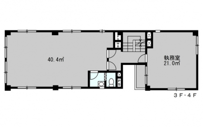
| セールスコメント | 本物件は、北新宿4丁目1棟ビル 物件のご案内でございます。 JR総武本線「東中野」駅より徒歩7分、東京メトロ東西線「落合」駅より徒歩5分、JR山手線「新大久保」駅より徒歩18分という、複数路線が利用可能な立地に佇む1棟ビルでございます。 2025年に大規模修繕が実施されており、1階部分はビルトインガレージ、1階・2階・3階はリフォーム済み(写真参照)、5階は賃貸中という状態でございます。建物は1973年(昭和48年)6月築、鉄筋コンクリート造の5階建てで、延床面積は477.00u(約144.3坪)となっております。 周辺環境といたしましては、北新宿エリアは新宿区の北部に位置し、落合や東中野といった静かな住宅地と新宿の都心部の中間に位置する利便性の高いエリアとなっております。最寄りの落合駅からは東西線で大手町方面へのアクセスも良好で、東中野駅からは中央線快速や総武線各駅停車が利用できるため、都心各所への通勤にも便利な立地かと存じます。 用地制限は近隣商業地域に指定されており、商業施設と住宅が混在するエリアとなっております。 また、建ぺい率80%、容積率400%となっており、店舗・共同住宅・倉庫など、様々な用途での活用が考えられます。5階建て1棟ビルとして、自社ビル、賃貸ビル、事務所利用など、幅広い活用の可能性がございます。 北側の道路は幅員約6.3m、奥行約8mの北側公道に接道しており、建物へのアクセスも確保されております。 建物につきましては、3階には会議室、2階にも会議室が設けられており、屋上(防水工事済)も利用可能となっております。1階部分にはガレージが備わっているため、車両の駐車や荷物の搬入などにも対応できる造りとなっております。 設備面では、電気は東京電力、ガスは都市ガス、水道は上水道(公営水道)・下水道(公共下水)が整備されており、EV無、1階ガレージ車2台駐車可、各条件等要相談とのことでございます。 現在5階は賃貸中、その他の階は一部入居中とのことで、空渡し物件として、新たなオーナー様のご計画に沿った活用が可能かと存じます。 詳しくは物件担当:興松(090-6568-3141)までお問い合わせくださいませ。 物件概要 物件名 北新宿4丁目1棟ビル 価格 34,800万円 所在地 東京都新宿区北新宿4-28-12 交通JR総武本線「東中野」駅徒歩7分 東京メトロ東西線「落合」駅徒歩5分 JR山手線「新大久保」駅徒歩18分 土地 権利 所有権 地積 136.52u(約41.3坪) 土地通路負担 地目 宅地 接道 北側公道 接道約6.3m幅員約8m 建物 物件種別 店舗・共同住宅・倉庫 構造 鉄筋コンクリート 築年数 1973年(昭和48年)6月 建物面積 477.00u(約144.3坪) 階数/戸数 地上5階建 1戸 検査済証 無 法規制 都市計画 市街化区域 用途地域 近隣商業地域 建ぺい率 80% 容積率 400% 防火地域 高度地区 第3種高度地区 40m高度地区 設備 電気 東京電力 ガス 都市ガス 上水道 公営水道 下水道 公共下水 引渡し 相談 現況 一部入居中 備考1階ガレージ車2台駐車可 ・EV無 ・各条件等要相談 特記事項◆大規模修繕実施済(2025年) ◆1階ビルトインガレージ ◆1階、2階、3階リフォーム済(写真) ◆5階賃貸中 ※5階建て1棟ビル、1F駐車場付き、自己使用入居可、賃貸、事務所利用可 ※図面と現況が異なる場合は、現況を優先いたします。 |
| 階数 | 地上5階建 | 用途地域 | 近隣商業地域 |
|---|---|---|---|
| 構造 | RC造 | ||
| 間取り | - | ||
| 土地面積 | 136.52m² (公簿) (41.3坪) | 建物面積 | 477u |
| テラス面積 | - | 専用庭面積 | - |
| 現況 | 賃貸中 | 引渡し | 相談 |
| 土地権利 | 所有権 | ||
| 駐車場 | - | 駐輪場 | - |
| 法令上の制限 | - | 都市計画 | 市街化区域 |
| 地目 | 宅地 | 地勢 | |
| 接道状況 | 接道: 北 6.3m 公道 道路幅: 8m | 総戸数 | 10戸 |
| 私道負担面積 | - | セットバック | - |
| 建築確認番号 | |||
| 取引態様 | 仲介 | ||
| 情報更新日 | 2026年04月02日 | 次回更新日 | 2026年04月16日 |
電話をかける(携帯・PHS可)
03-5521-8707
「ホームページを見た」とお伝え下さい。
お問い合わせ番号をお伝えください
RHS-M04081218
電話でお問い合わせ
バイリンク株式会社 東京支社
|
電話をかける 03-5521-8707 ※「ホームページを見た」とお伝えください。 |
お問い合わせ番号をお伝えください RHS-M04081218 |
|---|
◎新宿区!◎大規模修繕実施済み!◎3駅路線使用可能!