日吉A-V 神奈川県横浜市港北区日吉5-24-3|2億5,500万円の一棟売りアパート|投資物件や収益物件|バイリンク株式会社

一棟売りアパート

日吉A-V
お気に入り
価格 2億5,500万円
利回り 4.79% 満室時想定
年収/月収
1,429.2万円 / 119.1万円
所在地 神奈川県横浜市港北区日吉5-24-3
この地域周辺の物件を見る
築年月 2004年2月築(築22年)
交通
東急東横線 日吉 徒歩21分
建ぺい率 - % 容積率 200 %
ここがおすすめ

2004年建築オーナーチェンジ物件!15戸中14戸賃貸稼働中!土地面積約100.65坪!東京都杉並区神奈川県横浜市『日吉』駅から徒歩21分!


  •  -
  •  -
  •  -
  •  -
  •  -
お問い合わせ、資料請求、見学のお申し込みはこちらから

電話をかける(携帯・PHS可)
045-415-8061
「ホームページを見た」とお伝え下さい。

お問い合わせ番号をお伝えください
RHS-32236555

お問合せ

セールスポイント

特徴
    セールスコメント 本物件は 2004年2月築、土地面積約100.65坪 を有するゆとりある敷地に建つオーナーチェンジ一棟アパートです。現在は15戸中14戸が賃貸稼働中と安定した入居状況を維持しており、購入後すぐに収益が得られる物件です。
    さらに角地に位置しているため、建物の視認性も良く、将来的な資産価値の維持にも寄与するでしょう。

    最寄りの「日吉」駅は、東急東横線・目黒線、横浜市営地下鉄グリーンラインが乗り入れ、渋谷・目黒・横浜方面へのアクセスに優れた交通結節点です。駅前には商店街が広がり、飲食店、スーパー、ドラッグストアなど生活利便施設が揃うため、学生から社会人まで幅広い層が集まる活気あるエリアです。

    また、物件周辺には同規模のアパートやマンションが多く点在しており、賃貸需要の高さが感じられる住宅街となっています。
    実際に現地を訪れると、静かな住環境でありながら生活導線が整っており、居住者にとって過ごしやすい印象を受けました。
    徒歩21分と駅距離はありますが、落ち着いた住環境を求める入居者層のニーズと合致し、長期的な入居が見込めるのではないでしょうか。

    物件価格:255,000,000円(税込)
    現況年収:13,380,000円(税込)
    現況利回り:約5.24%
    満室想定月収:1,191,000円(税込)
    満室想定年収:14,292,000円(税込)
    満室想定利回り:5.60%
    本物件にご興味ございましたらお気軽に担当 後藤 TEL080-3595-0904までお問合せくださいませ。

    物件概要

    階数 地上3階建 用途地域 第一種住居地域
    構造 S造
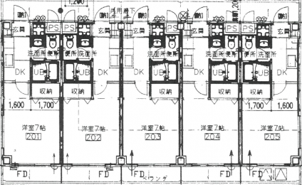
    間取り 1K×15戸 -
    土地面積 332.75m² (公簿) (100.66坪) 建物面積 -
    テラス面積 60m² 専用庭面積 -
    現況 賃貸中 引渡し 相談
    土地権利 所有権
    駐車場 - 駐輪場 -
    法令上の制限 - 都市計画 市街化区域
    地目 宅地 地勢
    接道状況 接道: 北東 20.76m 公道 道路幅: 6.4m
    接道: 東南 14.15m 公道 道路幅: 5m
    総戸数 15戸
    私道負担面積 - セットバック -
    建築確認番号
    取引態様 一般媒介
    情報更新日 2026年05月20日 次回更新日 2026年06月03日
    情報更新日:2026年05月20日 次回更新予定日:2026年06月03日
    ※各種情報と差異がある場合は現況優先となります
    お問い合わせ、資料請求、見学のお申し込みはこちらから

    電話をかける(携帯・PHS可)
    045-415-8061
    「ホームページを見た」とお伝え下さい。

    お問い合わせ番号をお伝えください
    RHS-32236555

    お問合せ

    電話でお問い合わせ
    バイリンク株式会社 横浜支社

    電話をかける

    045-415-8061

    ※「ホームページを見た」とお伝えください。
    お問い合わせ番号をお伝えください
    RHS-32236555

    お問い合わせ

    お問い合わせ内容
    お問合せ内容必須
    【備考欄】
    詳細な見学ご希望時間、ご質問、ご希望条件などがございましたらお聞かせ下さい。
    (2000文字以内)
    お客様情報
    お名前必須
    連絡先必須 メールアドレス

    ※ご記入いただいたメールアドレス宛てに、お問合せ内容の確認メールをお送りいたします。
    ※Yahoo!メールなどのフリーメールをご利用の場合、迷惑メールフォルダに入る場合があります。
     迷惑メールのフォルダ・設定等をご確認下さい。
    電話番号
    住所
    FAX(任意)
    ご年収必須
    自己資金(諸経費含む)必須 万円
    ※ご入力いただいたお客さまの個人情報は、「個人情報のお取り扱いについて」に基づき適正に取り扱います。
    必ずお読みになり、同意の上お問い合わせください。

    お気軽にお問い合わせください

    045-415-8061
    物件番号 RHS-32236555
    ※「ホームページを見た」
    とお伝え下さい。

    お役立ち機能

    このページを印刷する
    会員登録
    不動産投資 ア・ラ・カルト
    売買実績
    大阪駅前ビル
    バイリンク株式会社
    - 大阪本社
    大阪市北区梅田1丁目2番2号 大阪駅前第2ビル12階
    06-6347-8681
    - 神戸支社
    兵庫県神戸市中央区三宮町2丁目11-1センタープラザ西館7階
    078-321-0910
    - 京都支社
    京都府京都市下京区綾小路通新町東入善長寺町143番地マスギビル204号
    075-741-8135
    - 東京支社
    東京都港区新橋2丁目9番16号 新橋赤レンガ通りビル4階
    03-5521-8707
    - 横浜支社
    神奈川県横浜市神奈川区鶴屋町2丁目9番4号 元木ビル5階
    045-415-8061
    - 福岡支社
    福岡県福岡市中央区天神3丁目6番4号 VORT福岡天神8階
    092-401-6135

    PAGE TOP

    お問合せ

    お問合せ
    大阪・東京の収益物件、不動産投資はバイリンク株式会社
    Copyright(C) xLINK. All Rights reserved.