若林ハイホーム1階店舗 東京都世田谷区若林3-15-3|4,840万円の売り店舗・事務所|バイリンク株式会社

売り店舗・事務所

若林ハイホーム1階店舗NEW利回り8%以上
お気に入り
価格 4,840万円
利回り 8.00% 満室時想定
年収/月収
387.4万円 / 32.3万円
所在地 東京都世田谷区若林3-15-3
この地域周辺の物件を見る
築年月 1968年5月築(築57年)
交通
東急世田谷線 松陰神社前 徒歩4分
建ぺい率 80 % 容積率 300 %
ここがおすすめ

松陰神社前駅から徒歩4分オーナーチェンジ物件!1階区分店舗!NET利回り約7.24%!


  •  -
  •  -
  •  -
  •  -
お問い合わせ、資料請求、見学のお申し込みはこちらから

電話をかける(携帯・PHS可)
045-415-8061
「ホームページを見た」とお伝え下さい。

お問い合わせ番号をお伝えください
RHS-54565632

お問合せ

セールスポイント

特徴
  • 新着物件
セールスコメント 東急世田谷線「松陰神社前駅」は、三軒茶屋方面へのアクセスが可能で、落ち着いた住環境と個性豊かな個人商店が共存するエリアです。
実際に現地を歩いた印象としても、駅周辺には個人経営の飲食店や物販店が点在しており、地域住民を中心に日常的な人の流れがしっかりと感じられました。

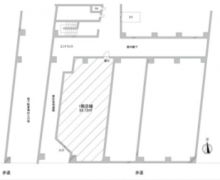
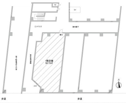
本物件は、松陰神社前駅より徒歩4分の立地に位置する1階部分の区分店舗物件です。
現地では生活動線上に位置していることが確認でき、通行量自体は爆発的ではないものの、地域に根差した安定した集客が見込めるポジションであると感じております。
視認性も確保されており、店舗としての使い勝手の良さが伺えました。
オーナーチェンジ物件として、現在は飲食店が賃貸中であり、飲食用途としての利用実績がある点からも、同用途での継続的なテナント需要が期待できると考えられます。

派手な繁華街立地とは異なりますが、地域密着型の安定した営業が見込めるエリア特性を踏まえると、中長期的に安定したインカムゲインを狙える投資用物件といえるのではないでしょうか。

物件価格:48,400,000円
現況賃料:322,800円(税込)
現況年収:3,873,600円(税込)
表面利回り:約8.00%
NET利回り:約7.23%

物件概要

階数 地上10階 地下1階建 用途地域 近隣商業地域
構造 SRC造
間取り -
土地面積 966m² (公簿) (292.22坪) 建物面積 -
テラス面積 - 専用庭面積 -
現況 賃貸中 引渡し 相談
土地権利 所有権
駐車場 - 駐輪場 -
法令上の制限 - 都市計画 市街化区域
地目 宅地 地勢
接道状況 - 総戸数 -
私道負担面積 - セットバック -
建築確認番号
取引態様 一般媒介
情報更新日 2026年04月14日 次回更新日 2026年04月28日
情報更新日:2026年04月14日 次回更新予定日:2026年04月28日
※各種情報と差異がある場合は現況優先となります
お問い合わせ、資料請求、見学のお申し込みはこちらから

電話をかける(携帯・PHS可)
045-415-8061
「ホームページを見た」とお伝え下さい。

お問い合わせ番号をお伝えください
RHS-54565632

お問合せ

電話でお問い合わせ
バイリンク株式会社 横浜支社

電話をかける

045-415-8061

※「ホームページを見た」とお伝えください。
お問い合わせ番号をお伝えください
RHS-54565632

お問い合わせ

お問い合わせ内容
お問合せ内容必須
【備考欄】
詳細な見学ご希望時間、ご質問、ご希望条件などがございましたらお聞かせ下さい。
(2000文字以内)
お客様情報
お名前必須
連絡先必須 メールアドレス

※ご記入いただいたメールアドレス宛てに、お問合せ内容の確認メールをお送りいたします。
※Yahoo!メールなどのフリーメールをご利用の場合、迷惑メールフォルダに入る場合があります。
 迷惑メールのフォルダ・設定等をご確認下さい。
電話番号
住所
FAX(任意)
ご年収必須
自己資金(諸経費含む)必須 万円
※ご入力いただいたお客さまの個人情報は、「個人情報のお取り扱いについて」に基づき適正に取り扱います。
必ずお読みになり、同意の上お問い合わせください。

お気軽にお問い合わせください

045-415-8061
物件番号 RHS-54565632
※「ホームページを見た」
とお伝え下さい。

お役立ち機能

このページを印刷する
会員登録
不動産投資 ア・ラ・カルト
売買実績
大阪駅前ビル
バイリンク株式会社
- 大阪本社
大阪市北区梅田1丁目2番2号 大阪駅前第2ビル12階
06-6347-8681
- 神戸支社
兵庫県神戸市中央区三宮町2丁目11-1センタープラザ西館7階
078-321-0910
- 京都支社
京都府京都市下京区綾小路通新町東入善長寺町143番地マスギビル204号
075-741-8135
- 東京支社
東京都港区新橋2丁目9番16号 新橋赤レンガ通りビル4階
03-5521-8707

PAGE TOP

お問合せ

お問合せ
大阪・東京の収益物件、不動産投資はバイリンク株式会社
Copyright(C) xLINK. All Rights reserved.